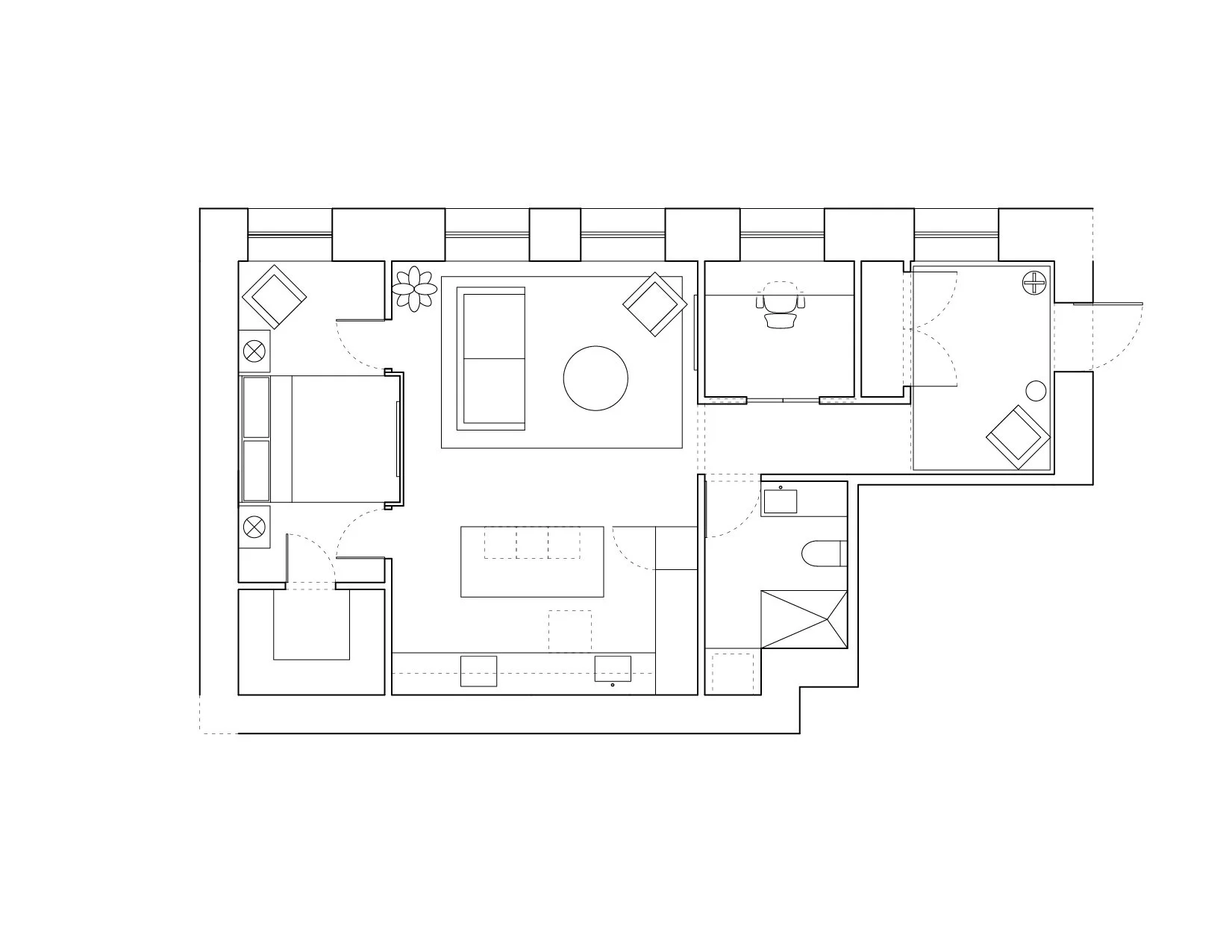
New Town Residence / Vilnius, Lithuania / 2024 / Status: In Progress

This full apartment renovation will transform a suite of rooms in a historic, landmarked villa into a bright and eclectic apartment for a young artistic couple. We have worked carefully to maintain existing historic details while adapting the plan to suit contemporary urban life. Our plans are currently being reviewed by city preservation officials.