Duplex Apartment / Vilnius, Lithuania / 2021 / Status: Complete

We recently completed an extensive renovation of a historic duplex apartment in the heart of Vilnius. The existing apartment presented a few challenges. The lower level was fully below grade, the floors were connected by a steep stair, and most original detail had been removed—save for one brick wall and a vaulted ceiling. The design response was driven by a desire to first understand and then embrace the unique qualities of the space.

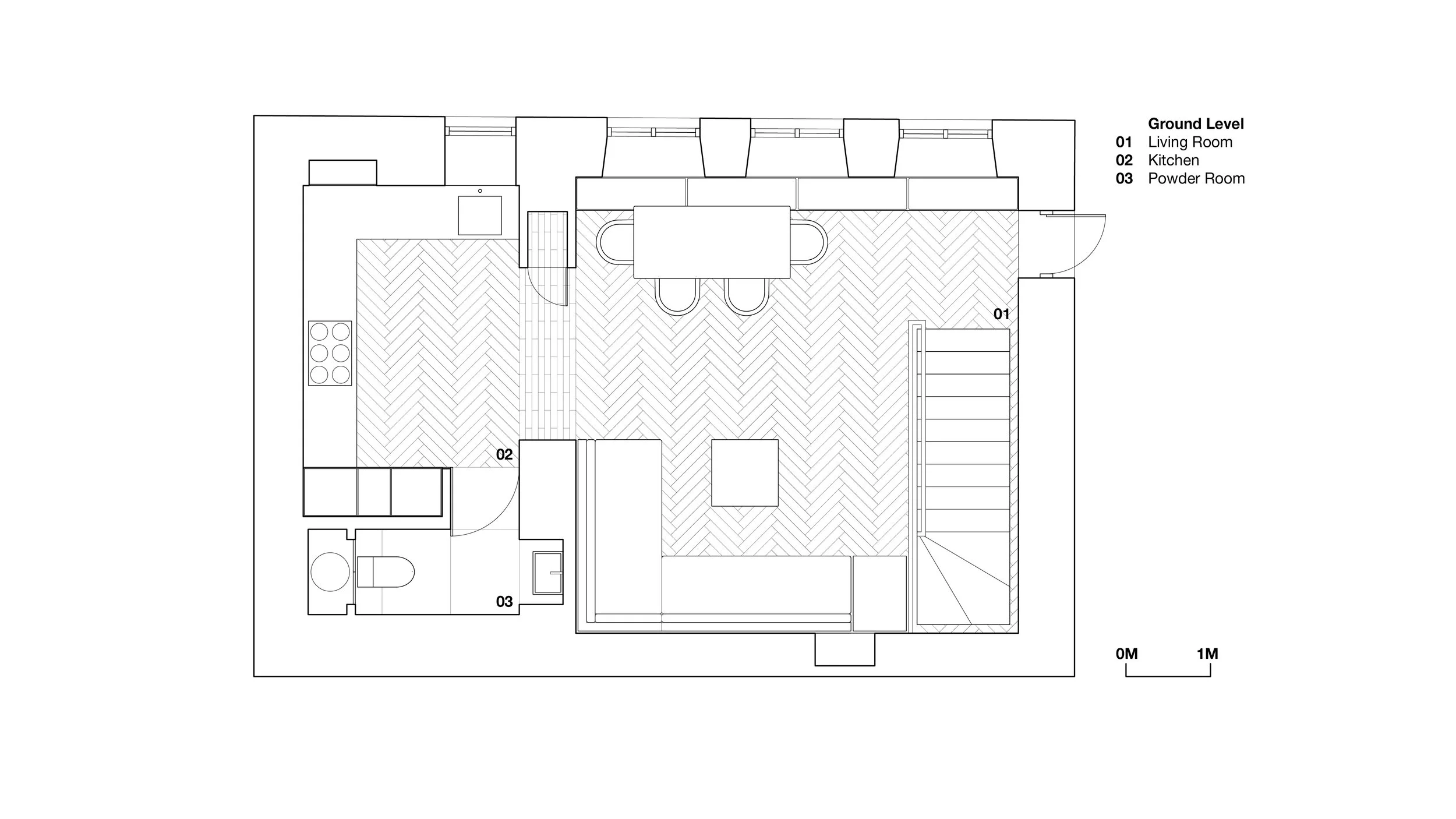
The apartment is split between a public ground level and a private lower level. Upstairs, shifting a powder room door freed up space in the living room. A long, uplit bench runs beneath the windows, serving both the dining table and the entry, while also concealing ductwork for mechanical systems. A closet fits into a thickened entryway that leads to the kitchen. There, a metal wall conceals the refrigerator, pantry, and powder room entry. Local craftsmen restored the original brickwork, which is paired with a warm, textural palette: oak herringbone floors, custom travertine furniture, linen upholstery, crisp white millwork, and stainless steel accents.

Downstairs, existing foundation walls naturally defined three zones: bedroom, bathroom, and dressing room. Millwork was used to absorb soffits and clarify the architectural envelope. A nearly 8-meter-long downlit curtain is the focal point of the bedroom. It softens the room, conceals storage, improves acoustics and insulation, and gestures toward a missing window. Slightly darker materials give the lower level a distinct character within a highly uniform interior.

Throughout, modest yet strategic planning shifts yield significant gains in functionality. Millwork, curtains, and furniture conceal mechanical systems, resolve awkward conditions, and define space. These elements blur the line between architecture and furniture. The design seeks to create a functional, contextual, and warm home, shaped by the character of the existing space and the needs of the client.

Photographs by Aistė Rakauskaitė & Jacob McCarthy